Quadrilocale in vendita

Basiglio, via giotto
€ 560.000
4 locali 4 locali
151 Mq 151 Mq
2 bagni 2 bagni

Quadrilocale in vendita

Basiglio, via giotto

Descrizione annuncio

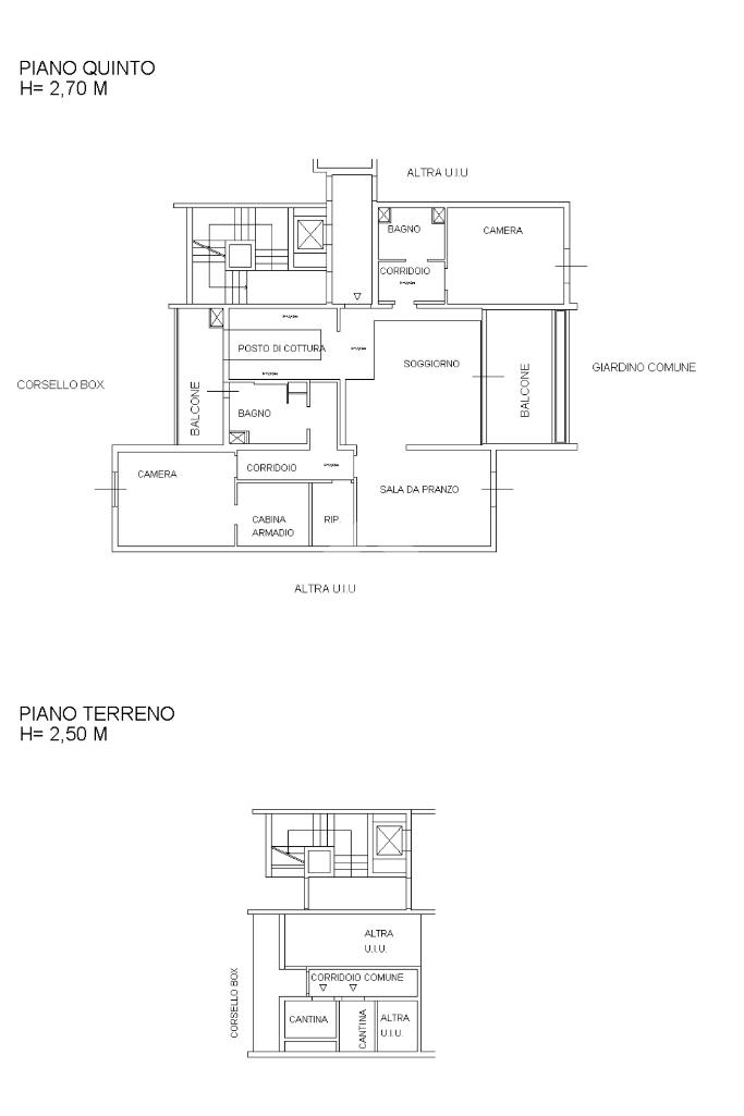
All’interno di uno dei contesti residenziali più apprezzati della zona, in residenza rinnovata, proponiamo elegante quattro locali di 151 mq, interamente ristrutturato, pensato per chi cerca comfort, stile e qualità.
La zona living si apre su un ampio e luminoso soggiorno affacciato su una loggia fronte parco con vista panoramica sul verde, sala da pranzo e cucina a vista con balcone armoniosamente integrate in un ambiente moderno e raffinato.
L'appartamento offre inoltre due ampie camere matrimoniali, una delle quali con cabina armadio, due bagni di cui uno finestrato, un ripostiglio e una pratica zona progettata come lavanderia.
Due cantine e box medio da €30.000 completano una proprietà esclusiva, pronta da vivere.

Mostra tutto

Nelle vicinanze

Trasporto pubblico Trasporto pubblico
Rozzano (Via Guido Rossa)
Rozzano (Via Guido Rossa)
2,2 Km
Viale Liguria - Via Guido Rossa (Rozzano)
Viale Liguria - Via Guido Rossa (Rozzano)
2,5 Km
Trasporto pubblico
700 m
Basiglio, Don Coira
Basiglio, Don Coira
1,4 Km
Ricariche auto elettriche Ricariche auto elettriche
Res. Sassi - Milano 3
320 m
BeCharge Centro Commerciale Milano 3
420 m
BeCharge Municipio di Basiglio
430 m
Centro Commerciale Milano 3 | EnelX
530 m
BeCharge campi sportivi Basiglio
610 m
Scuole Scuole
Asilo nido Pollicino
400 m
Scuola Materna Archimede
420 m
Scuola Elementare-Media Milano 3
510 m
Humanitas University
1,5 Km
Humanitas Lab - Centro Ambulatoriale Privato
1,6 Km
Farmacia Farmacia
Farmacia Remotti
400 m
Farmacia
1,0 Km
Farmacia San Giorgio
1,9 Km
AMA Rozzano Spa
2,5 Km
Farmacia comunale
2,9 Km
Ospedali Ospedali
Istituto Clinico Humanitas
1,7 Km
Supermercati Supermercati
Unes
460 m
Il Viaggiator Goloso
500 m
Simply Market
2,0 Km
Esselunga
2,2 Km
MD
2,4 Km
Negozi Negozi
Panificio Milano 3
460 m
Negozi
1,1 Km
Pasticeria Ottocento
2,0 Km
Le Monelle
2,9 Km
Il Pane dei Pini
2,9 Km
Bar Bar
Rivalago
220 m
Easy Café
370 m
Bar
400 m
Le Bollicine
1,1 Km
Il Bar dei Pini
2,9 Km
Ristoranti Ristoranti
Rivalago
230 m
Kurama Restaurant
390 m
L'angolo
440 m
L'Oasi Verde di Rivalago
930 m
Ristoranti
1,0 Km
Mostra tutto

Caratteristiche

Rif.:
61170244
Piano:
5 di 6 con ascensore (Piano alto)
Box:
1
Balconi:
1
Terrazzi:
1
Camere da letto:
2
Mostra tutto
Prezzo Prezzo
€ 560.000
Prezzo box Prezzo box
€ 30.000
Rata mutuo Rata mutuo
€ 2.660 / mese
Spese annue Spese annue
€ 6.000
Proponi il tuo prezzoProponi il tuo prezzo

Classe Energetica

F
F
F
F
F
F
F
F
F
EP invernale del fabbricato:
EP estiva del fabbricato:
Anno di costruzione:
1981
Riscaldamento:
Centralizzato
Tipo impianto:
Ad aria
Tipo alimentazione:
Aria

Ti interessa visionare l'immobile?

Fissa un appuntamento  Fissa un appuntamento

Richiedi informazioni

Clicca su Leggi per aprire l'informativa
* Questi campi sono obbligatori

Calcola il tuo mutuo

Semplice e senza impegno
Anticipo

( % )
Mutuo

( % )

pochi semplici passi

inserisci i tuoi dati
Questionario completato
Grazie per aver richiesto un appuntamento senza impegno con un nostro Consulente del Credito e Assicurativo.

Hai inserito correttamente tutti i dati necessari e a breve riceverai una e-mail con un link da convalidare per inviare i tuoi dati.
Affiliato
Studio Milago 2004 Srl
Via Palazzo dei Cigni, 2 20080 Basiglio (MI)

Il nostro staff


  • Gianluca Parise
    Affiliato

  • Valeria Francesca Parise
    Collaboratrice

  • Sara Fasani
    Coordinatrice
Via Palazzo dei Cigni, 2 20080 Basiglio (MI)
Zona: Basiglio-Milano 3
Mostra su mappa
Orari: lunedì - venerdì 09.00 - 12.30 e 14.30 - 19.00 - sabato 09.30 - 12.30
Affiliato
Studio Milago 2004 Srl
Via Palazzo dei Cigni, 2 20080 Basiglio (MI)

2026 Tecnocasa Franchising S.p.A. - P. IVA 08365160152 - Via Monte Bianco 60/A 20089 Rozzano (MI). Ogni agenzia ha un proprio titolare ed è autonoma. Privacy policy | Policy utilizzo | Cookie policy