Quadrilocale in vendita

Basiglio, via Giuseppe Verdi
€ 450.000
4 locali 4 locali
192 Mq 192 Mq
2 bagni 2 bagni

Quadrilocale in vendita

Basiglio, via Giuseppe Verdi

Descrizione annuncio

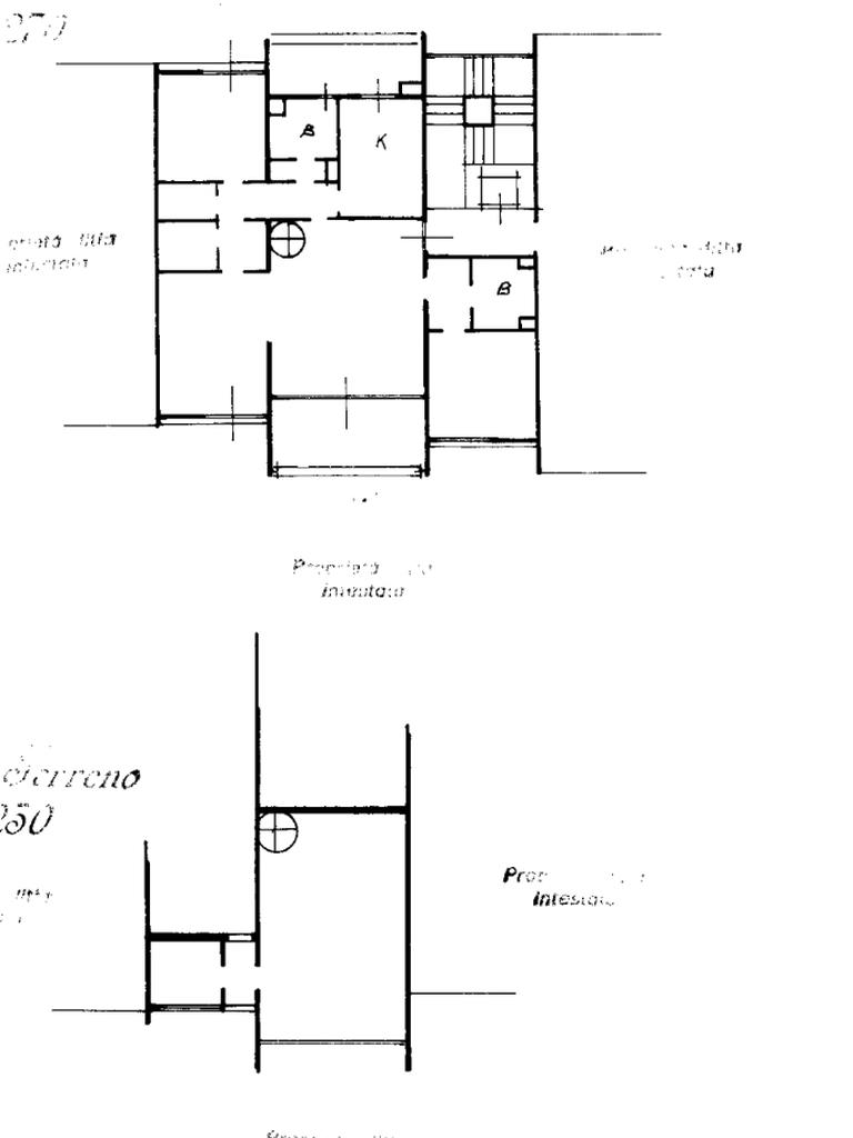
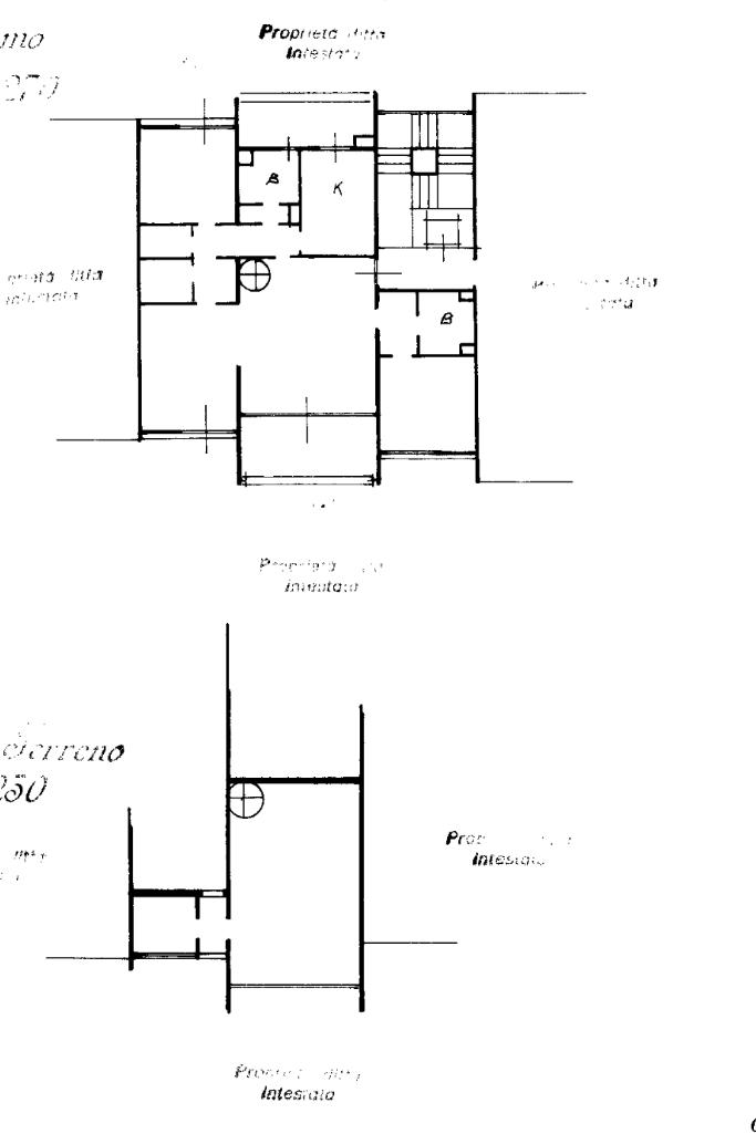
Si propone in vendita un raffinato appartamento quadrilocale con locale hobby, per una superficie complessiva di 192 mq, arricchito da un comodo box doppio con accesso diretto all’abitazione.

Distribuito su due livelli, l’immobile accoglie al primo piano un ampio e luminoso soggiorno che si apre su una loggia panoramica con vista sul parco, luogo ideale per momenti di relax e convivialità. Adiacente al soggiorno si trova una sala da pranzo — perfetta anche come elegante studio privato — e una spaziosa cucina abitabile, dotata di balcone di servizio.

La zona notte offre due confortevoli camere matrimoniali, entrambe curate nei dettagli, due bagni (uno finestrato e uno cieco), un pratico ripostiglio e una cabina armadio pensata per garantire ordine e funzionalità.

Al piano terra, un’accogliente area studio completa la proprietà, offrendo uno spazio versatile che può essere destinato al lavoro, alla creatività o al tempo libero.

Un’abitazione che unisce eleganza, comfort e riservatezza, immersa in un contesto tranquillo e circondato dal verde del parco.

Mostra tutto

Nelle vicinanze

Trasporto pubblico Trasporto pubblico
Rozzano (Via Guido Rossa)
Rozzano (Via Guido Rossa)
1,3 Km
Viale Liguria - Via Guido Rossa (Rozzano)
Viale Liguria - Via Guido Rossa (Rozzano)
1,5 Km
Trasporto pubblico
410 m
Via Della cooperazione / Via Guido Rossa
Via Della cooperazione / Via Guido Rossa
1,1 Km
Ricariche auto elettriche Ricariche auto elettriche
BeCharge Municipio di Basiglio
640 m
Res. Sassi - Milano 3
740 m
BeCharge Centro Commerciale Milano 3
760 m
Centro Commerciale Milano 3 | EnelX
760 m
BeCharge campi sportivi Basiglio
1,0 Km
Scuole Scuole
Scuola Elementare-Media Milano 3
510 m
Scuola Materna Archimede
560 m
Asilo nido Pollicino
580 m
IIS Italo Calvino
1,0 Km
Humanitas Lab - Centro Ambulatoriale Privato
1,1 Km
Farmacia Farmacia
Farmacia Remotti
810 m
Farmacia San Giorgio
1,3 Km
AMA Rozzano Spa
1,5 Km
Farmacia
2,0 Km
Farmacia comunale
2,0 Km
Ospedali Ospedali
Istituto Clinico Humanitas
960 m
Supermercati Supermercati
Unes
820 m
Il Viaggiator Goloso
830 m
Simply Market
1,1 Km
Pam
1,6 Km
Esselunga
1,6 Km
Negozi Negozi
Panificio Milano 3
830 m
Pasticeria Ottocento
1,4 Km
Negozi
2,0 Km
Bar Bar
Easy Café
780 m
Bar
820 m
Rivalago
820 m
Le Bollicine
2,0 Km
Ristoranti Ristoranti
L'angolo
810 m
Rivalago
820 m
Kurama Restaurant
840 m
L'Oasi Verde di Rivalago
1,2 Km
Take eat
1,2 Km
Mostra tutto

Caratteristiche

Rif.:
61138728
Piano:
1 di 6 con ascensore (Piano basso)
Box:
1
Balconi:
1
Terrazzi:
1
Camere da letto:
2
Mostra tutto
Prezzo Prezzo
€ 450.000
Rata mutuo Rata mutuo
€ 2.122 / mese
Spese annue Spese annue
€ 4.800
Proponi il tuo prezzoProponi il tuo prezzo

Classe Energetica

F
F
F
F
F
F
F
F
F
EP invernale del fabbricato:
EP estiva del fabbricato:
Anno di costruzione:
1980
Riscaldamento:
Centralizzato
Tipo impianto:
Ad aria
Tipo alimentazione:
Aria

Ti interessa visionare l'immobile?

Fissa un appuntamento  Fissa un appuntamento

Richiedi informazioni

Clicca su Leggi per aprire l'informativa
* Questi campi sono obbligatori

Calcola il tuo mutuo

Semplice e senza impegno
Anticipo

( % )
Mutuo

( % )

pochi semplici passi

inserisci i tuoi dati
Questionario completato
Grazie per aver richiesto un appuntamento senza impegno con un nostro Consulente del Credito e Assicurativo.

Hai inserito correttamente tutti i dati necessari e a breve riceverai una e-mail con un link da convalidare per inviare i tuoi dati.
Affiliato
Studio Milago 2004 Srl
Via Palazzo dei Cigni, 2 20080 Basiglio (MI)

Il nostro staff


  • Gianluca Parise
    Affiliato

  • Valeria Francesca Parise
    Collaboratrice

  • Sara Fasani
    Coordinatrice
Via Palazzo dei Cigni, 2 20080 Basiglio (MI)
Zona: Basiglio-Milano 3
Mostra su mappa
Orari: lunedì - venerdì 09.00 - 12.30 e 14.30 - 19.00 - sabato 09.30 - 12.30
Affiliato
Studio Milago 2004 Srl
Via Palazzo dei Cigni, 2 20080 Basiglio (MI)

2025 Tecnocasa Franchising S.p.A. - P. IVA 08365160152 - Via Monte Bianco 60/A 20089 Rozzano (MI). Ogni agenzia ha un proprio titolare ed è autonoma. Privacy policy | Policy utilizzo | Cookie policy